Most drogowy przez San w miejscowości Sielnica – cz. II


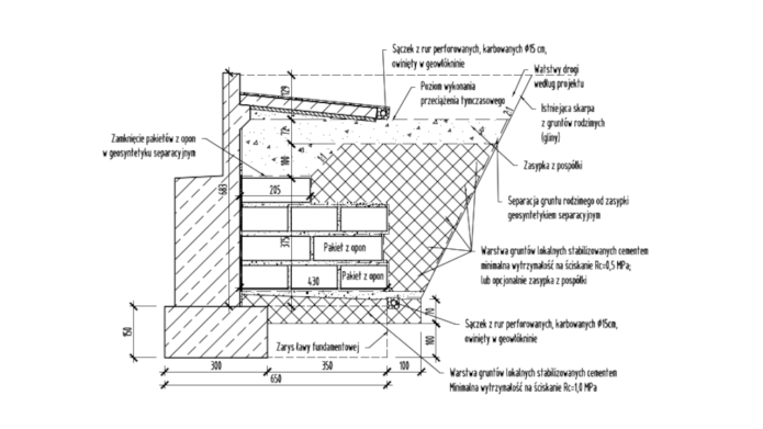
Pakiety z opon łącznie z przewarstwieniami z piasku średniego o grubości 10-15 cm zostały zamknięte w geosyntetyku separacyjnym. Wbudowany blok gumowo-gruntowy z całości został ulokowany w strefie między ścianami bocznymi przyczółków. A także przykryty warstwą gruntów niespoistych zagęszczonych, płytą przejściową i konstrukcją nawierzchni. W celu minimalizacji odkształceń innowacyjnej zasypki zastosowano czasowe jej przeciążenie (7 dni), (rys. 10). Po upływie roku od otwarcia obiektu nie zaobserwowano żadnych deformacji pionowych w strefie dojazdu do obiektu mostowego.
którzy są subskrybentami naszego portalu.
i ciesz się dostępem do bazy merytorycznej wiedzy!




